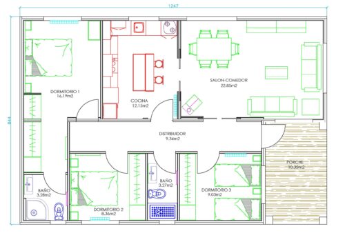
El modelo Gran Villa es una casa modular para los clientes más exigentes. Destinada como vivienda habitual, incorpora los mejores acabados con un diseño más vanguardista que permite gran variedad de opciones. Dispone de la más alta clasificación energética tipo A gracias a su nivel constructivo, su aislante térmico y acústico, al ahorro energético por bombillas LED, a su sistema de agua caliente sanitaria (ACS) mediante energía aerotérmica y a su sistema de calefacción mediante pellets entre otros muchos avances.
Gran Villa Picos de Europa

Características Gran Villa Picos de Europa
Calidades: Altas
Construcción: Casas Modulares, Casas Prefabricadas
Materiales: Acero
Estilo: Mediterráneo
Dormitorios: 3 Dormitorios
Baños: 2 Baños
Plantas: 1 Planta
Galería - Gran Villa Picos de Europa
También podría interesarte

Compartir

















