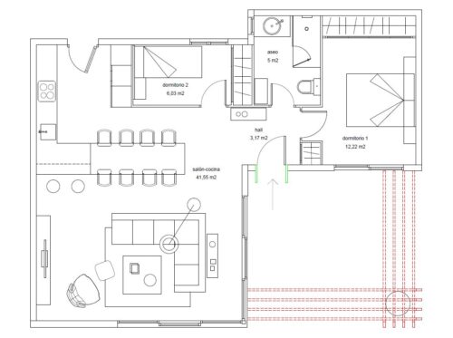
La Casa Prefabricada Modular Medium es una vivienda de tipo unifamiliar de una sola planta. Está fabricada con hormigón y cuenta con una superficie de 75m2 de vivienda y 23m2 de porche. Con un tiempo de construcción de 1 a 3 meses.
Con tan solo 75 metros cuadrados de vivienda su diseño y distribución la hacen amplia, práctica y elegante.
Compuesta de un espacioso salón-cocina , habitación principal, baño y habitación invitados. Además de un porche en la entrada.
Sus grandes cristaleras permiten mucha luminosidad a la vivienda, con el fin de aprovechar al máximo la luz natural.
Además, el cliente puede elegir y los acabados, y cuenta con aislamiento térmico superior, aprovechamiento solar y ventilación cruzada natural respecto al ahorro energético. También se puede añadir un garaje y cocina adicional.













