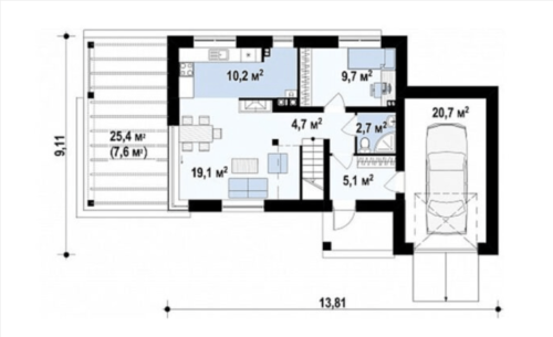
Modelo de vivienda con dos plantas que dispone de 250m2 en total. En la planta baja encontramos las zonas de día como el salón-comedor y una amplia cocina además de un dormitorio y un baño principal. Por su parte, en la primera planta se encuentran el resto de dormitorios, sumando un total de 4 en toda la casa. También hay un baño compartido. Su precio está desde 125.000€.
Fabricamos con los mejores materiales del mercado de casas prefabricadas que cuentan con certificación internacional. Para su construcción, empleamos madera de abeto de la mejor calidad, C24. Gracias a los mejores materiales y técnicas industriales conseguimos viviendas ecológicas calificadas energéticamente con A++ o superior y calificación acústica de clase 1.
Dispone de un aislamiento adecuado que facilitará el ahorro en las facturas de calefacción y electricidad. Estructura de las paredes portantes externas de armazón, acabadas con recubrimiento de fibra de madera. Tiene ventanas de PVC, las cuales son fáciles de limpiar y mantener, y además son muy resistentes a los factores climáticos y atmosféricos.
También, el programa utilizado para el diseño de estructura de techo tiene en cuenta todas las combinaciones posibles de cargas necesarias: nieve, viento, aislamiento, construcción de techo.















