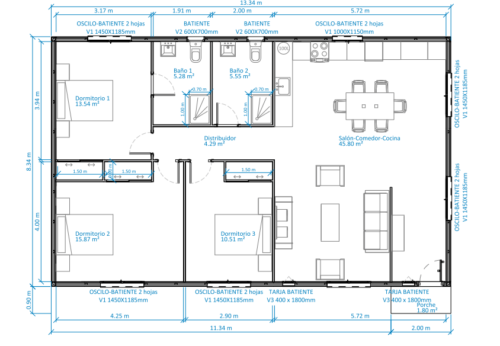
Este modelo tiene un total de 111m ² construidos en una planta baja más 2m ² de porche. Cuenta con 3 dormitorios, cada uno con un armario de 1’50m de ancho y uno de los dormitorios con baño particular. Además hay otro baño común, un salón-comedor y cocina.
En cuanto a la tabiquería de la vivienda, esta es de placa de yeso laminado de 13mm a ambos lados con perfilería de 47mm y lana de roca intermedia de 50mm. Tiene un acabado de pintura plástica lisa (dos colores a elegir), y revestimiento cerámico.
La puerta de entrada a la casa tiene perfiles de acero, plafonada y con cerradura de seguridad. Mientras, las puertas interiores son semi-macizas con hoja lacada en blanco, haya o roble. Las puertas cuentan con rodapié de madera a juego con puertas de paso.
El esquema estructural está diseñado con pilares y vigas de acero. Tiene un entramado de perfiles de acero para la elaboración de cerchas con el fin de salvar grandes luces y conseguir espacios diáfanos. Además, utilizamos paneles multicapa con aislamiento térmico de poliuretano inyectado, con un acabado con relieve de imitación teja.












