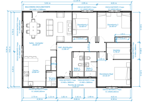
Casa unifamiliar de 124’60m2 en una planta baja. Consta de 3 dormitorios, uno de ellos con baño y vestidor propio, otro baño común, un salón-comedor con cocina americana, en la que se encuentra un pequeño cuarto de servicio. Además, en el exterior hay un porche de 5’45m2.
La tabiquería de la vivienda es de placa de yeso laminado de 13mm a ambos lados con perfilería de 47mm y lana de roca intermedia de 50mm. Tiene un acabado de pintura plástica lisa (dos colores a elegir), y revestimiento cerámico.
La puerta principal de entrada a la casa tiene perfiles de acero, plafonada y con cerradura de seguridad. Mientras, las puertas interiores son semi-macizas con hoja lacada en blanco, haya o roble. Dispone de rodapié de madera a juego con puertas de paso.
En cuanto a la estructura, el esquema estructural está diseñado con pilares y vigas de acero. Entramado de perfiles de acero para la elaboración de cerchas con el fin de salvar grandes luces y conseguir espacios diáfanos. Utilizamos paneles multicapa con aislamiento térmico de poliuretano inyectado, con un acabado con relieve de imitación teja.












