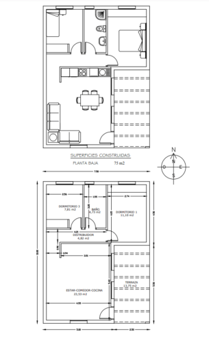
Este modelo de vivienda unifamiliar cuenta con 75m2 de superficie distribuidos en una planta baja. Incluye un porche exterior de 13,75m2 que permite el acceso a la vivienda.
Lo primero que nos encontramos tras cruzar la puerta principal es el espacio compartido por el salón-comedor y la cocina de 23,52m2. El pasillo-distribuidor que nos dirige a los dormitorios tiene una medida de 4,82m2. Dispone de dos dormitorios, el principal con una extensión de 11,10m2 y otro individual de 7,81m2. Entre ambos se encuentra el baño principal de la casa, de 4,73m2.
En cuanto a la construcción, el grosor de las paredes exteriores es de 225 mm, distribuidos entre el pladur interior, tablero OSB 3 de 10 mm, aislamiento de lana de roca dentro de la estructura portante de madera de 50×140 mm, tablero OSB 3 de 15 mm, tela barrera de vapor, listones para crear una cámara de aire, tablero OSB 3 y el acabado exterior.
Dispone de ventanas en PVC con cristal Climalit, las persianas vienen incluidas. Las puertas son de madera de pino, y las puertas acristaladas incorporan contrapuertas.
Debido a la utilidad de estas estancias, el baño y la cocina tienen suelo de gres (color a elegir). Para el resto de la casa el cliente puede elegir entre tarima de madera o de gres.















