La Minicasa La Llobregat es una vivienda de tipo unifamiliar construida con madera. Tiene una superficie total de 75m2, repartidos en una única planta, con un tiempo estimado de construcción de 4 meses. Su diseño minimalista la vuelven un lugar de encuentro, silencio y paz para desconectar de la ciudad. Está pensada para uso ocasional o casa para invitados.
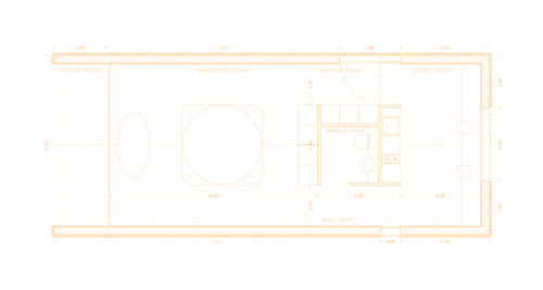
Cuenta con una oficina, un baño, una habitación y una terraza.
La disposición estratégica de la cama, el lucernario y la bañera, como elementos fundamentales del proyecto, permiten experimentar un auténtico ejercicio de fusión entre el entorno y el hogar.
La climatización se compone de equipo de aerotermia con conductos, apoyado con la generación de placas solares fotovoltaicas.
La calidad del aire interior está garantizada con un sistema de ventilación con recuperador de doble flujo.
Sistema de recuperación de agua de lluvia y depósito para su aprovechamiento.
Además cuenta con una calificación energética excelente, de clase A+.













