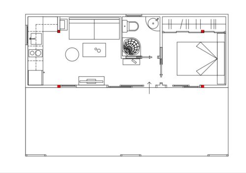
La Minicasa Modular Studio es una vivienda de tipo unifamiliar de una única planta. Está fabricada con acero con una superficie de 30m2 más otros 24m2 de porche. Al ser tan compacta es ideal para familias que quieran tener una casa de camping o una pequeña casa para invitados. El tiempo de construcción es de 1 a 3 meses.
La distribución incluye 1 habitación, 1 baño, cocina, salón comedor con sofá cama.
El cliente tiene la posibilidad de elegir los acabados, además de añadir un garaje o cocina adicionales.
En cuanto al ahorro energético cuenta con aislamiento térmico superior, aprovechamiento solar y ventilación cruzada natural.













