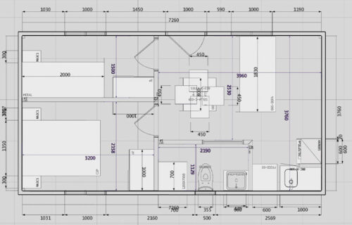
El modelo Chiclana tiene unas dimensiones de 7,5 x 4 metros dando un total de 30m2 en una planta baja. El modelo es personalizable para adaptarlo a los gustos del cliente.
Dispone de dos dormitorios, uno principal con cama de matrimonio y otro doble que cuenta con una cama litera para dos personas. En cuanto al salón-comedor y la cocina está todo en un acogedor espacio y a su lado se encuentra el baño de la casa.
Los muros exteriores son americanos de 120mm de espesor y la tabiquería de madera con distintos tipo de acabados, a elegir por el cliente. Se aplica un tratamiento de la madera respetuoso con el medio ambiente.
Las ventanas de PVC oscilobatiente incluye persiana y cristal 4/16/4 con rotura de puente térmico en color blanco. En cuanto a las puertas, para las interiores ofrecemos variedad de modelos predeterminados donde elegir.
Nos encargamos de la instalación eléctrica, mecanismos de primera calidad e iluminación LED. Tiene la opción de añadir antena, ADSL, instalaciones externas o placas solares.














