El modelo de mobil home Lodge LO 770 refleja un estilo de vida moderno, debido a su interior simple y funcional. Tiene unas dimensiones de 8,00 x 4,00 metros dando como resultado un total de 32m2 y cuyo precio es de 29.050€
Su diseño contiene colores vivos y su diseño es ideal para una familia con niños pequeños o bien adolescentes, teniendo una capacidad máxima de 6 personas.
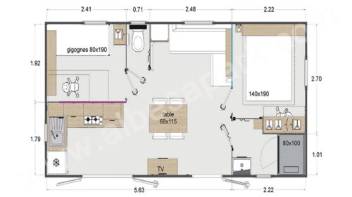
Este modelo cuenta con 2 habitaciones, una con cama de matrimonio de 140×190 y otra individual con cama de 80×190 con posibilidad de añadir una segunda cama o cuna. En el espacio central se encuentra el salón-comedor y la cocina, la cual viene totalmente equipada. El baño cuenta con plato de ducha de cerámica, wc y lavabo con mueble.
El cliente puede añadir una terraza de madera genérica o especial en el exterior si lo desea. Esta puede ser montada por el cliente o encargarnos nosotros de ello. Se trata de terrazas especiales para casas móviles, por lo que se garantiza su seguridad.












