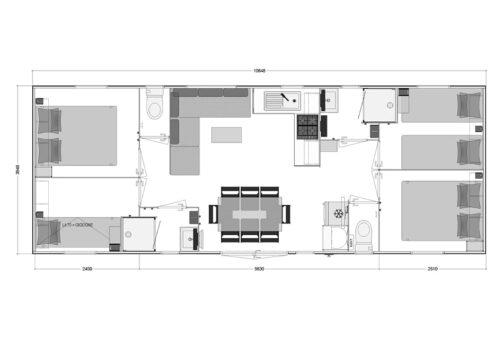
El modelo Toscane tiene unas dimensiones de 10,65 x 4 m dando una superficie total de 40m2. Su precio es de 40.450€
Su organizada distribución de las 4 habitaciones permite el modelo albergue hasta 8 personas para dormir. Además, tiene dos baños con dos aseos separados y un amplio salón de 18m2 donde realizar actividades de ocio junto con la familia o amigos.
El salón está rodeado a ambos lados por los dormitorios, separando dos áreas que cuentan con un dormitorio matrimonial y otro infantil cada una. Los dormitorios matrimoniales cuentan con una cama de tamaño matrimonial, mientras que las otras dos tienen capacidad para dos camas individuales.
La cocina viene equipada con lavavajillas, fregadero de acero inoxidable, cocina de gas con 4 fuegos y muebles de cocina con suficientes cajones para guardar utensilios y cubiertos. Por su parte, los baños disponen de pie de ducha, lavabo con espejo y mueble para productos de baño. En los aseos se encuentran los wc con lavabo.















