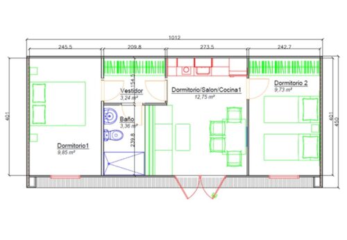
El modelo Nidify 1012 es una mobile home con unas dimensiones de 10,12 x 4,50 metros, dando como resultado un total de 45,54m2. Su precio es de 52.255€
La casa destaca por su diseño exterior e interior y dinamismo en su distribución y con una gran durabilidad de todos los materiales empleados.
En el interior, hay en todo el habitáculo detector de humo y luz de emergencia. Cuenta con un salón con sofá, una cocina equipada con vitrocerámica de 2 fuegos eléctrica, frigorífico, campana extractora. En cuanto a las habitaciones, hay 2 dormitorios muy espaciosos con amplios armarios y un baño equipado con lavabo con mueble y espejo, inodoro y plato de ducha antideslizante. Todas las estancias disponen de iluminación led.
Acabados exteriores en composite y fenólico, con ventanas sin persiana en PVC con doble cristal.
En Sopeña transformamos el complicado proceso de transporte de un Mobil Home en algo sencillo, trasladando su hogar a donde el cliente desee. Nuestros transportistas son capaces de una operación rápida y libre de complicaciones en cualquier tipo de Mobil Home.















