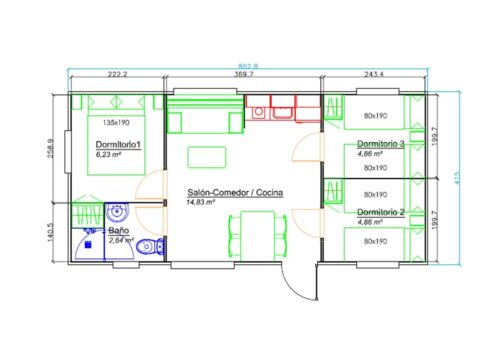
El modelo de Mobile Home Nidify Serie E Modelo 863, se organiza en una planta baja de 35,81m2 con unas dimensiones de 8,63 x 4,15 metros. Su precio es de 29.368€
Dispone de un salón-comedor con sofá, mueble de salón y mesa con 4 banquetas altas. La cocina está equipada con vitro, campana extractora y frigorífico con dos puertas. Cuenta con dos habitaciones con armario ropero, mesillas, cortinas, una de ellas con cama de matrimonio y la otra con dos camas individuales. Baño con inodoro, lavabo y plato de ducha de perfil bajo con mampara de cristal.
Acabado exterior Natural Nest, fachada de canexel imitación madera y carpintería exterior de PVC con ventanas tipo climalit, antracita por fuera, blanca por dentro.
En Sopeña transformamos el complicado proceso de transporte de un Mobil Home en algo sencillo, trasladando su hogar a donde el cliente desee. Nuestros transportistas son capaces de una operación rápida y libre de complicaciones en cualquier tipo de Mobil Home.














