La casa modular S.H. 4+4 BOX 3h es una vivienda de tipo unifamiliar de dos plantas, con una superficie total construida de 168m2. Su diseño e instalaciones ofrecen una vivienda moderna, confortable y eficiente. Con un tiempo de construcción estimado de 4 meses.
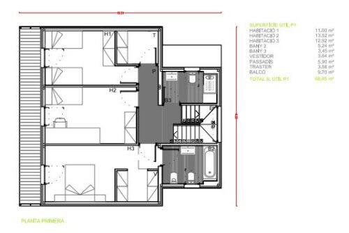
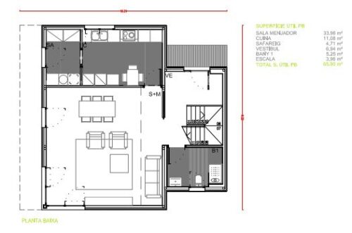
La planta baja cuenta con un salón amplio, una cocina independiente con lavadero y un baño. En la planta superior nos encontramos con dos habitaciones individuales con un baño, y una habitación doble con su propio baño. Además de una terraza.
Tiene una calificación energética de clase A, y el cliente podrá escoger dentro de una gama, por ejemplo: el color de la fachada, de la carpintería exterior, pavimentos interiores o el color del mobiliario de la cocina.














