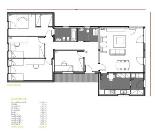
La casa modular S.H.8 4H es una vivienda unifamiliar de una única planta, construida con acero, con una superficie de 154m2. Su diseño ofrece una gran habitabilidad en su interior.
Cuenta con un gran salón-comedor con cocina independiente y lavadero, 2 habitaciones dobles, 2 habitaciones individuales y 2 baños. Además de un vestidor.
Tiene una calificación energética muy buena, de clase A. Es completamente personalizable y el cliente podrá escoger dentro de una gama, por ejemplo: el color de la fachada, de la carpintería exterior, pavimentos interiores o el color del mobiliario de la cocina.













