La Gama Comfort de Modularium dispone de ocho modelos entre los que elegir. Uno de ellos, es el funcional y optimizado Modelo 202.
La vivienda cuenta con una superficie de 84 metros cuadrados, configurándose como una opción interesante, con el espacio justo y necesario para una familia de pocos miembros.
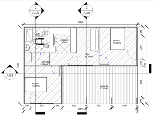
Distribución espacial interna de la vivienda
El Modelo 202 de la Gama Comfort tiene dos dormitorios, ambos de trece metros cuadrados. Cuenta además con un baño.
La habitación más amplia de la casa es el salón-comedor, con más de 21 metros cuadrados. Una mesa separa esta estancia de la cocina, la cual cuenta con 6,5 metros cuadrados.
La casa cuenta además con un porche de casi 14 metros cuadrados en el que disfrutar de los días de buen tiempo.
Conciencia medioambiental y sostenibilidad
Como el resto de viviendas diseñadas y construidas por la empresa Modularium, el Modelo 202 de la Gama Comfort cumple una serie de puntos fundamentales.
Así, esta casa reúne los principios de sostenibilidad, eficiencia, diseño, tecnología, comodidad, salud y precio asequible. Esto unido a su tamaño, la convierte en una opción a considerar para aquellos que empiecen su vida en familia.
De entre las particularidades de esta vivienda, destaca la eficiencia energética. Se trata de un elemento clave a día de hoy, pues un elevado consumo energético tiene un fuerte impacto negativo en nuestra economía y en nuestro planeta.
Para conseguir optimizar al máximo el uso de energía, el Modelo 202 se crea de acuerdo con el método clickhouse. Según Modularium, el método clickhouse un innovador sistema de arquitectura modular que hace posible combinar soluciones con sistemas de aislamiento inteligentes térmicos-acústicos. Así consiguen que el interior de la vivienda mantenga de manera constante unas condiciones óptimas de confort, asegurando una temperatura ideal y un aire limpio y renovado.
Con ele fin de reducir aún más la huella de carbono de la vivienda, el modelo lleva integradas las últimas tecnologías disponibles en materia de energías renovables.
Por último, la casa está equipada con avanzados sistemas de domótica que hacen más fácil la búsqueda de sostenbilidad y confort por parte de los propietarios de la vivienda.











