La Gama Elegant de Modularium cuenta con tres modelos, entre los que se encuentra este elegante y funcional Modelo 301.
Tiene una superficie de 198 metros cuadrados, configurándose como una vivienda amplia para una familia media.
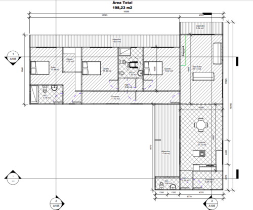
Distribución espacial interna de la vivienda
En el caso del Modelo 301, la vivienda cuenta con 3 dormitorios y 3 cuartos de baño. El dormitorio principal tiene un cuarto de baño particular, mientras que las otras dos habitaciones comparten uno.
El tercer cuarto de baño se encuentra en la cocina-comedor, frente a la despensa. Conectada a la cocina se encuentra un amplio salón, configurándose como la habitación más grande de toda la casa.
La casa cuenta también con un porche de casi 18 metros cuadrados y un trastero de algo más de 5 metros cuadrados.
Conciencia medioambiental y sostenibilidad
Toda la Gama Elegant, y en general todas las viviendas de Modularium, se ajustan a los principales valores de la empresa.
Estos incluyen la eficiencia energética como punto clave de desarrollo, sabiendo que el consumo energético tiene un fuerte impacto negativo en nuestra economía y en el planeta.
Para lograr esta optimización del gasto energético, el Modelo 301 se crea siguiendo el método clickhouse. De acuerdo con la empresa, se trata de un innovador sistema de arquitectura modular.
Este hace posible la integración de soluciones con sistemas de aislamiento inteligentes térmicos-acústicos, asegurando que se mantengan condiciones de confort óptimas en el interior de la vivienda, tanto de temperatura como de calidad del aire.
También se integran las últimas tecnologías del mercado en energías renovable, reduciendo la huella de carbono de la vivienda.
Por último, la casa también cuenta con sistemas de domótica avanzados que permiten poner la tecnología al servicio de la sostenbilidad y el confort de los propietarios de la vivienda.
Así, el Modelo 301 de la Gama Elegant de Modularium reúne los principios de sostenibilidad, eficiencia, diseño, tecnología, comodidad, salud y precio asequible, convirtiéndose en una interesante opción de vivienda.











