Natura Nero 118 es una Casa Modular de 118m2 repartidos en dos plantas, con opción a terraza. El plazo de construcción es de 120 días como máximo.
En total, la Vivienda dispone de 3 dormitorios y 2 baños.
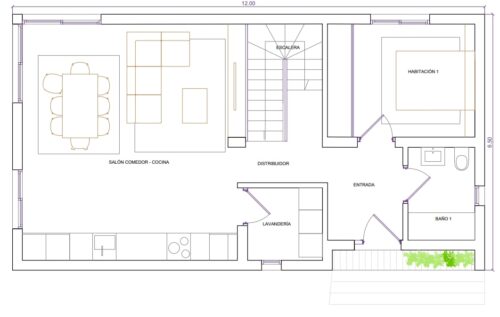
En la planta baja encontramos el salón-comedor-cocina, la lavandería y una de las habitaciones, además de un cuarto de baño.
Subiendo al primer piso, nos encontramos otras dos habitaciones y otro baño.
Se trata de una Vivienda de clasificación energética A o consumo energético casi nulo que incluye fachada ventilada, tarima parquet, instalación sanitaria y eléctrica, baños y cocina completamente equipados y persianas eléctricas, entre otros.
Incluye tambien transporte, grúa e implantación de módulos, siempre y cuando sea menos de 400km. La vivienda tiene 10 años de garantía.
Es opcional el sistema de termodinámica para ACS, estufa de pellets, el sistema de ventilación mecánica doble flujo, sistema de aerotermia por fancoils o suelo radiante, ventanas con gas argón y cristal bajo emisivo y sustitución fachada ventilada en cerámico porcelánico















