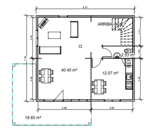
La casa Paris es una vivienda prefabricada de 108 m2 a los que se suman 20 m2 de terraza. Se trata de una construcción de madera con un precio de 75.000€ en su modelo más básico.
El modelo básico incluye paredes exteriores de 153 mm e interiores de 44 mm, además de tejado aislado de tejas. Por 82.000€ encontramos otro modelo de paredes exteriores de 179 mm e interiores de 70 mm, además del tejado de teja aislado.
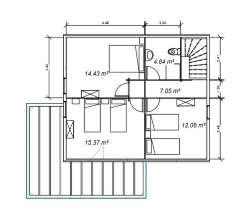
La casa tiene dos plantas. En el nivel inferior encontramos un salón-comedor, la cocina y un aseo. Subiendo las escaleras, hallamos 3 dormitorios, uno de ellos suite. Además en este piso hay otro cuarto de baño.
La vivienda prefabricada se realiza teniendo en cuenta un máximo respeto al medio ambiente, persiguiendo la máxima eficiencia energética mediante un adecuado aislamiento térmico y acústico.
El precio incluye el montaje e instalaciones de electricidad y fontanería, pero no el IVA (10%) ni el transporte.

















