Sergio es una vivienda prefabricada de 131 m2, más 18 m2 de porches. Es una construcción de madera con un precio inicial de 99.900€.
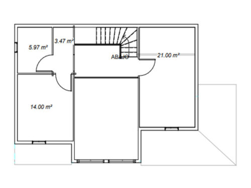
Los 124 m2 de la vivienda se encuentran divididos en dos plantas. En el nivel inferior encontramos un amplio salón-comedor conectado a la cocina. En este piso encontramos también un aseo y una habitación de suso múltiples, además de dos porches.
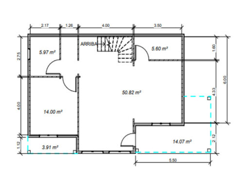
En el primer piso, hallamos 3 espaciosos dormitorios, además de otro baño y un balcón.
Cuenta con paredes exteriores de 179 mm e interiores de 70 mm, además de tejado aislado de tejas.
La vivienda prefabricada se realiza teniendo en cuenta un máximo respeto al medio ambiente, persiguiendo la máxima eficiencia energética mediante un adecuado aislamiento térmico y acústico.
El precio incluye el montaje e instalaciones de electricidad y fontanería, pero no el IVA (10%) ni el transporte.






















