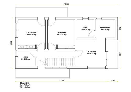
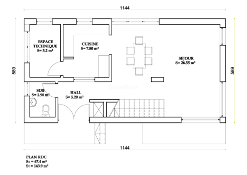
El modelo de vivienda In Design 140E está pensado para una familia debido a su amplias medidas. Tiene un total de 143,9m2 repartidos en dos plantas diferentes.
Al entrar por la puerta principal aparecemos en un hall que da acceso al resto de estancias de la casa, a su izquierda está el baño principal y a la derecha hay acceso inmediato al salón-comedor de 26,55m2. En su inmediatez está la cocina de 7,8m2 y a su lado un espacio para la despensa o cuarto de lavadoras. La primera planta, por su parte, dispone de 3 habitaciones, dos de ellas de 12,24m2 y una tercera de 11,37m2 con vestidor y baño particular.
Para la estructura se ha utilizado entramado ligero basado en una serie de elementos portantes a modo de muros. Los materiales utilizados para el aislamiento son hidrófugos, por lo que ayuda a evitar problemas de humedad. En adición, se colocan tableros OSB en la fachada, se procede a colocar sobre ellos las placas de aislamiento.
Las puertas de paso son laqueadas pintadas en blanco o en color (madera u otros), o semi-macizas compuestas por hoja de 825x2030mm, de color roble o similar. El cometido de las ventanas es amplio: aíslan del frío, del calor y de los ruidos y participa en la decoración como elemento de gran importancia. Pueden ser de distintos materiales: aluminio, pvc, poliuretano o madera.














