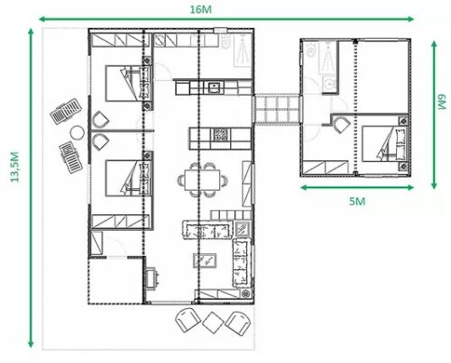
Este modelo de vivienda es el idóneo para quien busca amplitud, pues tiene un diseño muy atractivo en una sola planta con muchas posibilidades. Tiene un total de 120m2 + 30m2 de terrazas y su precio se encuentra desde los 179.185€.
Dispone de 3 dormitorios dobles y 2 baños completos. Una de las habitaciones es en suite y dispone de baño propio y vestidor. Aunque existe la posibilidad de convertir esas estancias en un cuarto dormitorio. En la misma estancia se encuentra la cocina, la cual tiene una isla central, y el comedor-salón para una mayor amplitud de espacio. Dispone de grandes ventanales por toda la vivienda, tanto en la parte frontal como en la posterior.
Utilizamos tarimas flotantes laminadas para el suelo interior, las cuales se fabrican a partir de un tablero base de alta densidad de fibra. Para darle resistencia se coloca una capa de papel llamado overline que aporta la dureza y resistencia a nuestra tarima flotante.
Dispone de fachada ventilada o trasventilada que es un sistema constructivo de cerramiento exterior constituido por una hoja interior, una capa aislante, y una hoja exterior no estanca. Esto permite acabados duraderos y de gran calidad, y ofrece excelentes prestaciones térmicas.
En cuanto a la climatización, todas nuestras casas incluyen la instalación de Aire Acondicionado inverter (splits aire frío/caliente) con el sistema de Aerotérmia y una Chimenea eléctrica (pantalla led con salida de aire caliente).















