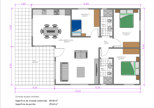
Esta vivienda unifamiliar se organiza en una planta baja de 90m2. El cliente puede añadir si lo desea un porche en el exterior de 25,65m2.
El salón-comedor y la cocina comparten un mismo espacio de 38,60m2, que al estar rodeado de grandes ventanales goza de gran luminosidad. En cuanto a los dormitorios, hay 3 en total. El principal mide 12,30m2 y además tiene un baño particular. Los otros dos dormitorios son de 8,87m2 y 11,64m2 y comparten el baño principal de la casa.
La vivienda es levantada en torno a una estructura metálica tubular formada por distintos tipos de perfiles y vigas.
Para el aislamiento, en suelos se emplea tablero OSB de 25 mm. y aislante de 4 cm. de poliuretano expandido. Por su parte, en paredes se utiliza un panel sándwich (placa de cemento al exterior, placa de pladur al interior y núcleo de 100mm. de XPS).
Las cubiertas están revestidas con pladur al interior, 10 cm. De fibra de vidrio, panel sándwich (de doble contrachapado de pino y núcleo de XPS), lámina impermeable y transpirable, cámara de aire y teja cerámica.
Cuenta con ventanas en madera maciza, con cristal tipo climalit, y contraventana de madera maciza o en ventana de PVC con cajón de persiana incorporado.
El cliente puede adaptar la distribución de la vivienda respetando las medidas de los módulos.












