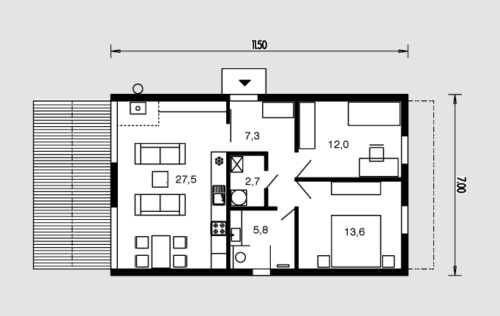
Esta casa unifamiliar dispone de una planta baja con 80,50m2. Cuenta con un recibidor, el salón-comedor con cocina americana, un cuarto para la lavadora-secadora, un baño completo y 2 dormitorios. Su precio es de 41.794,50€
La fachada de la vivienda es de monocapa y la carpintería, tanto exterior como interior es de madera. Los suelos interiores pueden ser con pavimento laminado o de gres y la tabiquería y techos son de yeso pintados en blanco. Las paredes de la cocina y baño alicatadas de gres.
La vivienda está construida con un sistema de Steel Framing que es una versión en acero del sistema de entramado de madera, por lo que comparten buena parte de sus ventajas.
Podemos enviar la casa a cualquier punto del mundo, ensamblaje de módulos, optimización de carga en contenedores e instructores para el montaje; en definitiva, tenemos la capacidad suficiente para atender todos los requerimientos que los clientes demanden.















