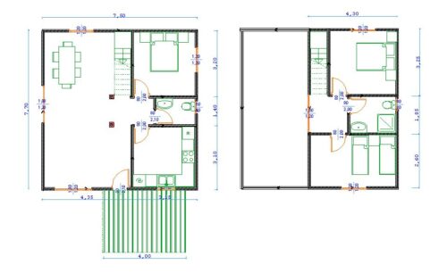
El modelo de vivienda unifamiliar Vesna se organiza en dos plantas con una superficie total de 90,86m2. La casa cuenta con un porche en el exterior cubierto que da acceso al interior.
La entrada nos sitúa en el espacio dedicado al salón-comedor donde realizar actividades de ocio con la familia y amigos. Junto a este espacio se encuentra la cocina en otra habitación cerrada. En esta planta encontramos también un dormitorio con cama de matrimonio y un aseo.
En la segunda planta encontraremos el resto de dormitorios, uno de ellos con cama de matrimonio y el otro doble con camas individuales. Entre ellos se encuentra el baño principal con ducha, wc y lavabo con mueble.
En cuanto a la estructura, los paneles de las paredes son de madera y lleva tableros OSB-3 hidrófugos que aseguran una mayor rigidez de toda la casa. Los paneles llevan aislante térmico-acústico de lana de roca y doble cámara de aire aislante: una por la parte exterior y otra por la parte interior.
Para el tejado se emplea una estructura portante de vigas de madera maciza cuyas dimensiones se adecuan a las medidas concretas del tejado.
Las ventanas pueden ser: de madera con o sin porticones, de aluminio o de PVC, de acuerdo al pedido de los clientes. Los cristales son con cámara aislante tipo climalit.












