Modelo de vivienda unifamiliar aislada de 216,30m2 en dos plantas. Dispone de coche lateral con acceso desde el interior de la vivienda y porche exterior con piscina. El tiempo de construcción es de 3 meses.
Al entrar por la puerta principal nos encontraremos en el salón de la vivienda en un espacio muy amplio que conecta con la cocina y el comedor. Esta misma estancia da acceso a la cochera además de el baño y la despensa.
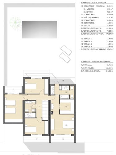
En la primera planta podemos encontrar las habitaciones, que en total dispone de 4. El dormitorio principal cuenta con baño y vestidor propios y en el pasillo hay otro baño común que se comparte entre el resto de habitaciones.
La vivienda se construye siguiendo el método MDR, galardonado por el premio Andalucía Emprende, que permite la mejora de los materiales, resistentes a seísmos y fuegos, el aislamiento y la eficiencia energética. Además, su construcción en fábrica apenas afecta al medioambiente, pues apenas genera residuos al utilizar materias primas básica como áridos y hierro.














